[a / b / c / d / e / f / g / gif / h / hr / k / m / o / p / r / s / t / u / v / vg / vm / vmg / vr / vrpg / vst / w / wg] [i / ic] [r9k / s4s / vip] [cm / hm / lgbt / y] [3 / aco / adv / an / bant / biz / cgl / ck / co / diy / fa / fit / gd / hc / his / int / jp / lit / mlp / mu / n / news / out / po / pol / pw / qst / sci / soc / sp / tg / toy / trv / tv / vp / vt / wsg / wsr / x / xs] [Settings] [Search] [Mobile] [Home]
Board
Settings Mobile Home
/diy/ - Do It Yourself


Thread archived.
You cannot reply anymore.


[Advertise on 4chan]


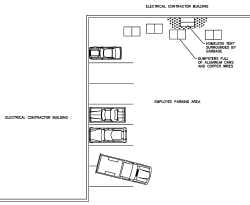
File: GOLD MINE .png (57 KB, 2879x2368)
57 KB
57 KB PNG
Scrappy here again and I have found a gold mine, but with a hitch. Behind an electrical contractor's building there are some dumpsters that always contain beer cans and copper wires. Copper wires can get good money, especially the bare ones. But there is a homeless male living in a tent here and he says that all of it is his and he threatened to cut me. I told one of the electricians and he said that the cops won't do anything. This situation is intolerable because the dumpsters are often full when the hauler arrives, so the bum actually collects nothing. What can I throw into his tent to neutralize him while I collect?
>>
>>2955328
Lighter fluid and fire

Classic fun
>>
>>2955328
laced fent

Or just fent
>>
>>2955328
Get a second homeless man who would shank him for half of his keeps
>>
M
U
R
ACID
T
I
C

M
U
R
ACID
T
I
C

M
U
R
ACID
T
I
C
>>
>>2955328
Give him a bottle of whiskey you can’t drink bc “your wife is bitching at you about being sober” wait until the bum is trashed then steal the shit
>>
>>2955328
Show up at a young adults networking event and talk about this cool urban exploration camping site behind the sparky shop
It'll solve itself one way or the other
>>
>>2955328
Don't smell the carpenters gatorade bottles
>>
>>2955546
>gatorade bottles
Those are plastic and not worth collecting. Electricians can drink beer.
>>
>>2955328
If you are not willing to get into a knife fight with a bum, then scrapping may not be for you.
>>
>>2955589
Carpenters are smart enough to not drink on the job.
>>
>>2955328
Give him half (actually a third) to separate the cans and wire. If that fails sweeten the deal by giving him a shopping cart.
>>
Move a 93 cu ft refrigerator box next to his tent
Get him drunk and bang some fent
Once asleep crush his skull with a cinder block
>>
keep walking jamal
>>
>>2955328
>What can I throw into his tent to neutralize him
Rattle snake
>>
File: whybecause.jpg (664 KB, 3264x1840)
664 KB
664 KB JPG
>>2955328
>>
>>2958260
They say the more retarded you are the more handicapped space you take up.

Also, nice three foot bed on that truck. Just big enough for your wife's purse. Bet you that bed liner is pristine. But at least you have the extra passenger space for your chihuahuas.
>>
File: butt hurt.jpg (22 KB, 361x358)
22 KB
22 KB JPG
>>2958280
It's not my truck, it's a former coworkers. but nice fan fiction. he doesn't own a dog. no the bed liner isn't.
>>
>>2955328
Where the fuck is the shed?



[Advertise on 4chan]

Delete Post: [File Only] Style:
[Disable Mobile View / Use Desktop Site]

[Enable Mobile View / Use Mobile Site]

All trademarks and copyrights on this page are owned by their respective parties. Images uploaded are the responsibility of the Poster. Comments are owned by the Poster.