[a / b / c / d / e / f / g / gif / h / hr / k / m / o / p / r / s / t / u / v / vg / vm / vmg / vr / vrpg / vst / w / wg] [i / ic] [r9k / s4s / vip] [cm / hm / lgbt / y] [3 / aco / adv / an / bant / biz / cgl / ck / co / diy / fa / fit / gd / hc / his / int / jp / lit / mlp / mu / n / news / out / po / pol / pw / qst / sci / soc / sp / tg / toy / trv / tv / vp / vt / wsg / wsr / x / xs] [Settings] [Search] [Mobile] [Home]
Board
Settings Mobile Home
/diy/ - Do It Yourself

Name
Options
Comment
Verification
4chan Pass users can bypass this verification. [Learn More] [Login]
File
  • Please read the Rules and FAQ before posting.

08/21/20New boards added: /vrpg/, /vmg/, /vst/ and /vm/
05/04/17New trial board added: /bant/ - International/Random
10/04/16New board for 4chan Pass users: /vip/ - Very Important Posts
[Hide] [Show All]


[Advertise on 4chan]


File: house.png (281 KB, 982x906)
281 KB
281 KB PNG
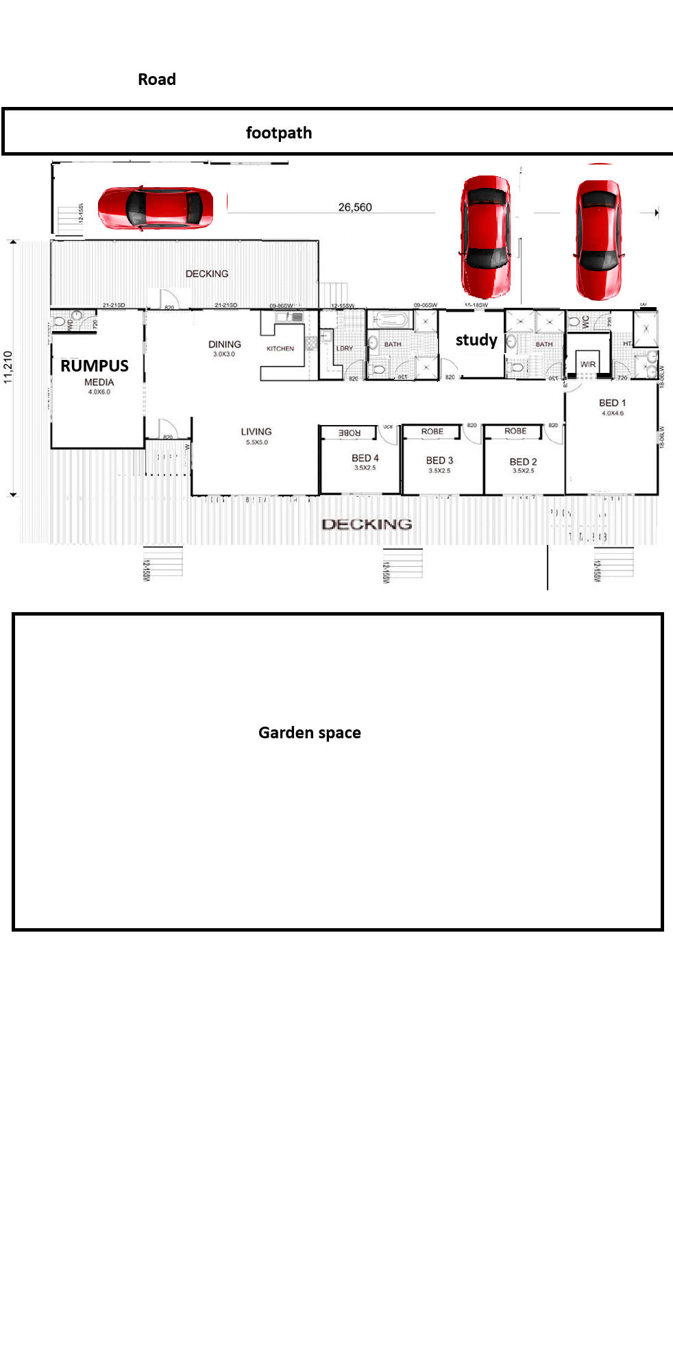
I am designing a house, based off a kithome

My girlfriend says she wants to have a lot of kids, so three smaller bedrooms would essentially be boys, girls, toddlers

The concept is that the less used rooms like bathrooms are on the street side of the house, and the house is as far front of the property as possible. This gives a larger backyard with the living room and all bedrooms having glass sliding doors that open directly onto the rear deck into the garden.

not sure about that toilet on the left. Bathrooms all have double showers because it's really a cheap thing to do, and allows efficiency in the morning

I think the Rumpus would be kind of a computer room for kids to have their games consoles and computers in a space that's still public, but not going to spread noise to the whole house
>>
>>2952375
The entire front face of the house is gonna be toilet windows?
>>
File: house.png (292 KB, 982x1981)
292 KB
292 KB PNG
>>2952408
basically. Who gives a shit?

The back of the house, where the family spends time, will be great.


Looking around 90% of homes are "double" garage on one side, master bedroom on the other, long narrow corridor in between.
>>
>>2952422
You should put those closets between the bedrooms to cut down on noise between rooms. Also, double showers? Really?
>>
>>2952422
Open plan kitchen, dining and laundry area next to the bedrooms? Enjoy your divorce 3 years from now
>>
File: (You) are dumb.png (301 KB, 800x800)
301 KB
301 KB PNG
>>2952375
this is the dumbest thing I've ever seen. your wife is going to want to clean FIVE bathrooms in a house no bigger than a doublewide? there is no fucking way. I won't even explain about the kids, and whose car do you think is going in the garage? Your project? with kids? the whole thing is fucktarded. Wait that's a laundry? With a STACKED UNIT? Five people and a STACKED UNIT are you insane?

There isn't even a fucking shed.
>>
>>2952459
this. you'd be able to do a linnen closet between each room as well with the rest of the space.
otherwise no idea how you're planning to place beds when there's a sliding door one wall and wardrobe door opposite. gonna be awkward as fuck. i'd settle for regular size doors to improve room space.
>>2952422
>basically. Who gives a shit?
people that don't want to hear the street noise or be watched in the bathroom. idk

putting a 'study' between two bathrooms is fucking hilarious. put the bathrooms back to back, will make plumbing way easier and then the study can be between a laundry room and bathroom lmao
the two showers thing is reasonable but I see 6 fucking showers what is wrong with you

do a single bathroom for the kids with a toilet closet and two shower closets, then a double vanity and tub in the main space. it's not like they're all going to be the same age getting ready at the same time. you've got two other toilets already.
need to rethink the whole living/media/study ideas
>>
>>2952375
Please put a door between the living space and the bedrooms.
>>
>>2952459
good call on the closets

>>2952482
>the two showers thing is reasonable but I see 6 fucking showers what is wrong with you

ok, say you have 4 kids.

you and your wife in one double shower, two boys in on shower room, two girls in shower room 3

>>2952489
that's good idea
>>
>>2952498
>ok, say you have 4 kids.
they never need to all be taking a shower simultaneously. it also just wouldn't work from a water pressure perspective. consider 2 simultaneously reasonable
>>
>>2952375
Don't build a house for people who don't exist.
>>
>>2952502
>they never need to all be taking a shower simultaneously. it also just wouldn't work from a water pressure perspective. consider 2 simultaneously reasonable
I just redid all my plumbing. I can have three showers running simultaneously using a 200k BTU Navien and modern lowish flow fixtures with no problem. However, if I add a fourth open hot tap, the pressure noticeably drops.
>>
extend rumpus room so whole roof is one big rectangle.

if you don't move closets so they serve as sound insulation, consider dual sided closet doors so you can access closet from hallway.

Kitchen looks small and limited. Should have two sink areas. No pantry? No Attached Garage/Workshop? Or is that where the 3rd car is?
>>
File: bluerobe.png (126 KB, 722x342)
126 KB
126 KB PNG
>>2952459
absolutely (closets..) this
picrel and relocate entrance doors (obv.) if needed.
>>
>>2952375
Holy shit don't put the master bedroom next to a kid's room like that. Opposite ends of the house if you can.
>>
>>2952375
must me fun living in a stable... not
>double showers for no practical reason
>faccade of shitters
>more porch than living space
>media room for manchildren activities
>separate room for each kid they will kick out anyway, the moment it turns 16
americans are fucking retarded i swear
>>
File: .png (13 KB, 230x636)
13 KB
13 KB PNG
>>2952375
I recommend using QCAD to draw your design.
>>
>>2952375
>Media has it's own toilet
So not only does everyone near enough have their own personal toilet, but just in case someone needs to shit while watching a movie you can have the whole family hear rather than them walking down the hall to their designated shitting loo?
>>
>>2952498
>you and your wife in one
You shower with your girlfriend not your wife.
>>
>>2953751
What is worse, the media room has only one wall for a tv and the bathroom doesn't face the screen so you can't even shit while watching.
>>
>>2952375
>2 double showers
>1 has a tub in addition to that
>"study" placed haphazardly in the middle the toilet tunnel
Why man. You have a new build opportunity. Give your floorplan some room to breathe.
For one I'd isolate the study to be adjacent to the media room, cut it down to single showers in each bathroom (keep the tub for washing baby), and make the kitchen bigger somehow.
Also, where is your storage? Garage / Attic / Shed situation?
For the record, I don't hate this design. There are things that make sense especially if outdoor living is the primary focus. But I feel there is a lot you're overlooking and maybe you should get an architect's opinion
>>
>>2953578
>>faccade of shitters
fuck the facade

all actual rooms open to the backyard, the house will be built for the people who live in the house, not the people outside the front of the house
>>
>>2953893
you realize all you've done this whole thread is say you're right
>>
File: AnimatedTrollFacegjif.gif (889 KB, 498x267)
889 KB
889 KB GIF
>>2953902
Do you not realize how forms work?
>Frame a question while confidently providing an objectively horrible answer
>Lay back and see earnest answers the make the research easy
>>
File: IMG_20140712_123845.jpg (606 KB, 1200x1600)
606 KB
606 KB JPG
>>2953920
What a specific memory

You reminded me of this house I saw in some Taschen book about architect's homes
Easily a decade ago
>>
File: IMG_20140712_123912.jpg (996 KB, 1600x2000)
996 KB
996 KB JPG
It was the copious amount of bedrooms that made me think of it
>>
File: IMG_20140712_123901.jpg (402 KB, 1600x1200)
402 KB
402 KB JPG
Sorry the images are low quality

This book was on my friend's desk, and I just snapped a few pics
>>
>>2953791
why? i would shower with your wife
>>
>WC
turd worlder detected
>>
>only 2 showers per bathroom
what are you a poorfag? you need at least 3
>>
>>2952422
i will never get this property layout. you are american i ass u me? my first though is to flip the house 90* and close to one side and make a parking area that slides over to yard on the other. it just seem so unpractical and close to the street to build like you draw. how can you even bring stuff into the backyard without going through the house?
well thats how we do it here you probably dont so thats it.
>>
>>2952375
Might as well make it 2 stories and put the kids and a toilet upstairs
The reduced foundation and roof work as well as the reduced deck upkeep will save you a fortune
>>
>>2954718
He wants privacy in his garden so putting the house in between it and the footpath makes sense. Putting the bedrooms on the garden side makes sense too, you want a nice view and not get oggled by the gypos that use the footpath. It's still a terrible layout but not for the reasons you mentioned.
>>
>>2954785
you get more privacy as i said.
>>
>>2954785
and he sacrifice all privacy in the front of the house for it. thats the thing i dont get with anerican housing, they use their house to create privacy behind it. we use all kinds of tricks to make even the house private.
>>
>>2954146
Water closet is universally accepted and used terminology for shitters from architects to plumbing fixture companies
>>
>>2954773
As a concrete guy who's done roofing, this makes the most sense

Cheaper to build a fence for your privacy or whatever than pour the last 1000sqft of slab
>>
>>2952375
Adding the bathroom across the house will add a crazy amount of plumbing cost unless the sewer and water lines are coming from that direction
>>
>>2955057
actually a reasonable point but then it's still, why not make it that large even if two story? it's a one time investment.
if there's a investment limitations then yeah you're right as hell
>>2955077
doing rough in plumbing before slab it's really not a significant add. 40' of 3" pipe, $150 materials and an hour of labor. negligible in the scope. you only get a single rough in before it's poured...
>>
>>2952498
They can take turns taking showers, anon. My sister has 7 of the little fuckers with only two showers and they make it work with no issues at all.
>>
>>2952375
Why do amerisharts need five bath rooms? Are they fearful of shitting their pants everytime they move their fat asses five meter?
>>
>>2956171
When you have a family that showers daily it's helpful to have multiple showers. This isn't relevant to cuckshed shutins or stinky jeets so I understand your confusion.
>>
>>2955225
150 for the sub slab, 50 for venting and accessories, $100 in pex
That's like 3000 if you pay someone not counting fixtures
>>
>>2955225
>Why not just build a 3000 sqft, I mean 4, I mean 6000 sqft house

Everything costs money
Like $25/sqft minimum
>>
I'd love to live single story. Fucks stairs.
>>
>>2952375
Whatever you build, don't get attached to it. You will lose it in the divorce.
>>
>>2952375
You're a fucking idiot. Why do you think you haven't seen a design like this before? It's because it sucks. All else aside, your kids aren't going to shower together because that's perverse. People need privacy, not efficiency in shower you fucking mong. Tell your landwhale girlfriend to get a job instead of crapping out 10 babies. Then you can afford a reasonable house for a reasonable family.
>>
Kek my old man was an architect, a coworker of mine (mechatronics engineer) designed his dream home and wanted to show it to my dad for approval.
The old man is a calm guy but he roasted his design it wasn't even funny.
Big house, all concrete small windows:" the yanks haven't bombed us in the last 70 years, why are you building a bunker"
Lower floor had 5 drive in garages, 1 for an RV :" Great you can sleep and shit in there when your old ass isn't able to get to the first floor."
All rooms facing the ugly side of the street while bath& toilet had mountainview. " Enjoy watching the neighbors perv?"
Bless you dad you're not a hands on guy but a brilliant thinker
>>
>>2956732
To be honest your dad just sounds like a nasty old man who should know and treat people better
>>
>>2952375
You need a dedicated exercise room
>>
>>2952375
How, exactly, are the multi-person sleeping arrangements going to work with those tiny children's rooms with multiple children? And why is the hallway so god-awful wide? You do not have the square footage to be getting away with a two meter wide hallway - it is nearly 20% of the square footage of that section of the house.

As others have pointed out, ditch the third bathroom and make your children figure it out. It's good for them - literally. And why are you showering in the morning, anyways? Are you a moron? There is some kind of neurosis that might need unpacking - the "kids" bathrooms are actually about the size of their bedrooms. I've run 2 toddlers in a 10 foot by 14 foot space - it was TIGHT.

With "lots of kids" you'll want a bigger laundry room. Ditch the stacked units and put them side-by-side underneath the counter top, buying yourself space for sorting and folding. If you're really that desperate for storage put in upper cabinets for less-used things.

Get rid of the media room bathroom. No need to extend your plumbing out that far for a shitter. What's the exposure of this 'yard side' of the house? That's the number one question here, though ultimately this looks more like a stable plan than a house plan. Also, there's no space for utilities.
>>
>>2956233
What kind of fucking entitled shit is this? Two showers is excess for a family of 4, the second is rarely used in practice.
>>
>>2959954
>why are you showering in the morning
nta but this is normal for Americans
>>
>>2952408
The great shitting gallery
>>
>>2952375
What if you habe guests and need more than 6 showers at once? I'd definitely recommend changing the media room to roman style Thermae.
>>
>>2952375
If you plan the kitchen-diner-living a bit better you can probably do away with the kitchen and get in more decking and an extra shower.
>>
>>2960067
kek

>>2959980
I know, I'm American, but it's still fuckin cranked m8
>>
>>2959980
Americans are fat. Americans live surprisingly far south. Boston is about the latitude of Rome. The long and short is they sweat like pigs and need to be hosed down regularly.
>>
>>2953578
>must me fun living in a stable... not
>americans are fucking retarded i swear

The only explanation for this, is its a jeet storage warehouse someplace in Canada.

OP is looking to pack 50-75 jeets in a small area. Theres no other explanation for how retarded it all is.
>>
>>2952375
>the Rumpus
WTF rumpus?

Why does your self-designed house look like a double-wide trailer?
Which way is the sun?
One of the main rooms should face the sun, unless you're in AZ or TX.
>>
File: 1764721412906499.png (505 KB, 1179x1518)
505 KB
505 KB PNG
>>2952375
try this instead



[Advertise on 4chan]

Delete Post: [File Only] Style:
[Disable Mobile View / Use Desktop Site]

[Enable Mobile View / Use Mobile Site]

All trademarks and copyrights on this page are owned by their respective parties. Images uploaded are the responsibility of the Poster. Comments are owned by the Poster.